A Casa Manaus da Coleção Casas do Brasil, desenvolvida e comercializada pela Projeto Acessível, é uma residência que proporciona uma experiência única, inspirada na rica capital da Amazônia.
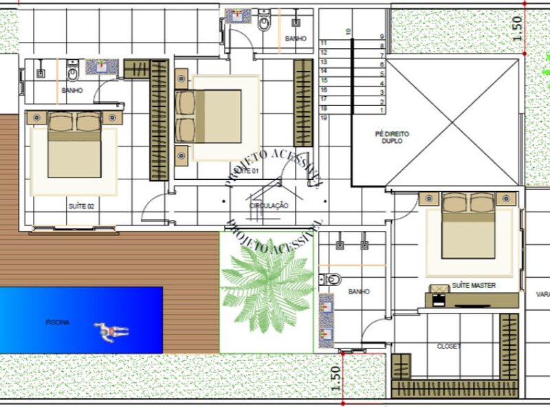
Com uma área de 253,01 metros quadrados, a Casa Manaus reflete não apenas o crescimento econômico da cidade, mas também sua conexão com a exuberante floresta tropical. O projeto é uma homenagem à riqueza natural do Brasil, destacando-se pela integração singular entre os ambientes internos e a paisagem externa.
A planta foi cuidadosamente concebida para promover aconchego e integração, permitindo que a natureza faça parte do cotidiano da residência. A área social é completamente integrada, enquanto o setor íntimo está localizado no pavimento superior, garantindo a privacidade necessária.
A Casa Manaus é um convite à paixão pela natureza. Seu projeto foca no paisagismo, trazendo para dentro de casa um pedaço da floresta amazônica. O moderno e a natureza coexistem de forma harmônica, criando um ambiente que reflete a grandiosidade e a riqueza cultural brasileira.
Este projeto não é apenas uma residência, mas uma celebração das grandezas naturais e culturais que tornam o Brasil único. Um convite para viver em sintonia com a beleza e a biodiversidade da natureza amazônica.





